• Client

    Ingleside Bakery & Gourmet Foods
  • Scope

    Change of Use, Architectural Drawings
  • Year

    2024

Lacas Drafting Special Sneak Peek!

 

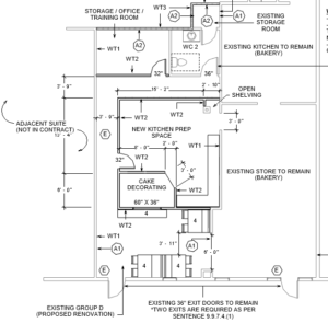
Ingleside Bakery and Gourmet Foods are expanding! Winning over TEN awards in ”Community Votes Cornwall 2023” owner Kyla Bevington and her team are expanding the original bakery into the neighbouring suite.

 

 

Focusing on their cake decorating techniques, the bakery will now have its very own viewing window for that exclusive look into the business. Dining seating to enjoy their award winning soups and sandwiches will also be added to complement the new space. Seats will surely go fast during the lunch rush!

 

 

As the new suite originally housed office space, Lacas Drafting and Design performed a change of use evaluation to convert the space into retail and carried out the architectural drawings for the renovation. From concept to building permit, it was a delight to work on this project with Kyla and the bakery.

 

 

We can’t wait to see the project once it’s all done! Post construction photos to come!