• Client

    Private Homeowners
  • Scope

    Zoning, Renderings, Architectural, Permits
  • Year

    2024

Lacas Drafting Special Sneak Peek!

 

Built adjacent to an 1800’s historic log home repurposed as Munroes Mills Flower Co.’s working shop, this new two story home will be a peaceful retreat at the end of a long work day.

 

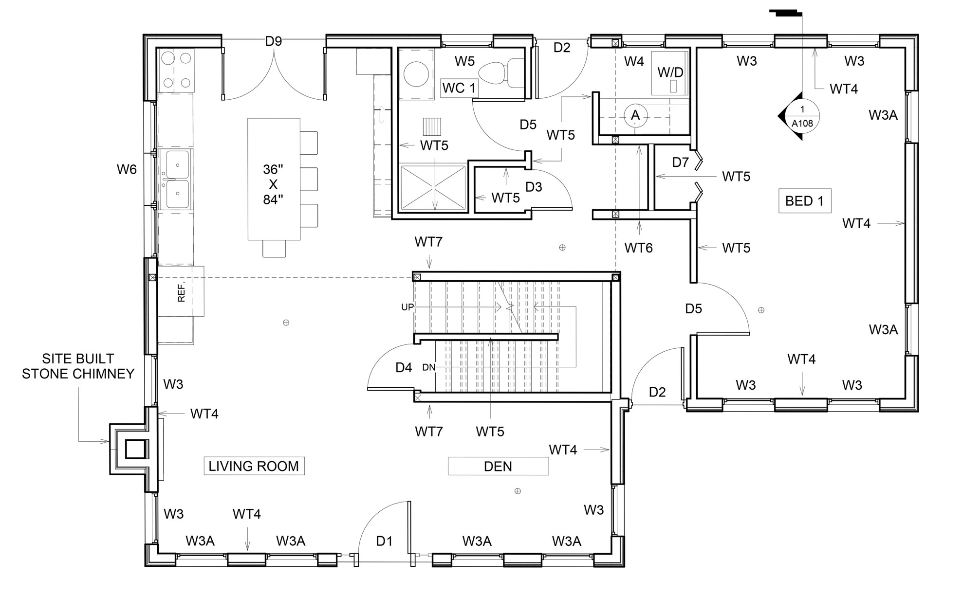
With an open concept first floor plan and a total of four bedrooms, nothing was missed in this custom 1,165sqf build. The property owners wanted a home that not only belonged with the surrounding scenery but could achieve the Aging-in-Place design principals they desired. A large wrap-around porch with an elevation low to the ground and a first floor primary bedroom were some of the elements used to achieve the client’s goals.

 

 

Designed as a secondary dwelling to the original Munroe family house / post office / general store, this new home takes full advantage of Ontario’s “More Homes Built Faster” Act by having more than one house on a single property. What a great way to add extra living quarters while staying close to your family!

Working with the owners on a project with such deep historical roots in our community was certainly a fun experience. We handled the complete planning phase from zoning review, 3D concept renderings, full architectural drawings and building permit submission.

 

As the perfect backdrop for Munroes Mills Flower Co.’s new flower stand this summer, we can’t wait to see it all come together and hope that you do too!

 

Post construction photos to come!